About
Description
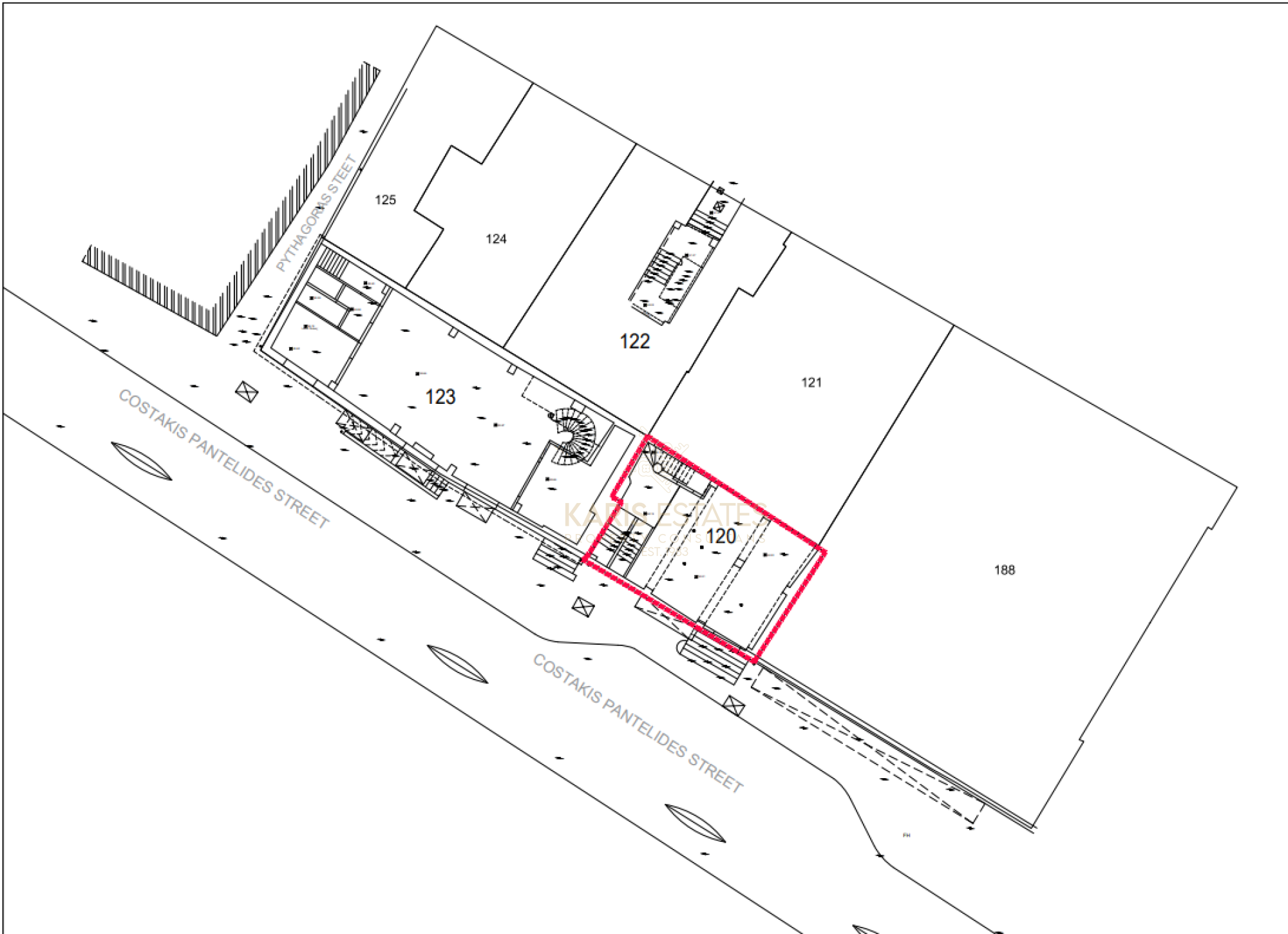
Location
Located at Liberty Square, within the renowned Venetian walls of Old Nicosia. Enjoy unmatched visibility on a high-traffic pavement, with shops, coffee houses, and restaurants nearby, making it an ideal destination for investors, entrepreneurs, or those seeking a unique urban residence.
Property Overview
- Total Area: 347 m²
Ground Floor
- Shop: 65 m²
- Basement: 72 m²
Upper Floors
- Three unique apartments, each spanning 70 m² (total 210 m²) across three floors
Key Features
- Historic significance: Nestled within the 16th-century Venetian walls, reflecting the country’s architectural heritage
- A vibrant area filled with shops, cafes, and restaurants
Ideal For
- Investors seeking a landmark property in a historic area
- Entrepreneurs seeking a commercial space in a high-visibility zone
- Individuals interested in city-center residential opportunities
Located at Liberty Square, within the renowned Venetian walls of Old Nicosia. Enjoy unmatched visibility on a high-traffic pavement, with shops, coffee houses, and restaurants nearby, making it an ideal destination for investors, entrepreneurs, or those seeking a unique urban residence.
Property Overview
- Total Area: 347 m²
Ground Floor
- Shop: 65 m²
- Basement: 72 m²
Upper Floors
- Three unique apartments, each spanning 70 m² (total 210 m²) across three floors
Key Features
- Historic significance: Nestled within the 16th-century Venetian walls, reflecting the country’s architectural heritage
- A vibrant area filled with shops, cafes, and restaurants
Ideal For
- Investors seeking a landmark property in a historic area
- Entrepreneurs seeking a commercial space in a high-visibility zone
- Individuals interested in city-center residential opportunities
Details
City:
Walled Old City
Building Type:
Residential Building
Construction Stage:
Resale
Block:
1
No. of Floors in building:
4
Parcel Number:
120
Plan:
460512
Construction Year:
1955
Registration Number:
1/1961
Share:
100%
Sheet:
21
Zone:
ΠΕΖ-εν
Construction Type:
Concrete
Areas
Plot Area:
76m²
Main Features
City View:
Title Deeds:
Basement:
Reception:
Enquire