About
Description
Location
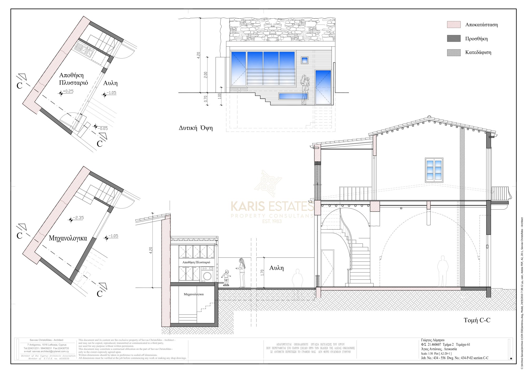
Nestled in the charming Old City of Nicosia, this property is situated close to Ayios Antonios Church and the Archbishop's Palace.
Showcasing traditional Cypriot architectural design
- Requires extensive renovation
- Comes with approved Planning Permit
- Classified as a listed property, offering partial funding for renovation costs by the Ministry of Interior
Proposed Layout (Approved Plans)
- Ground Floor:
Entrance hall.
Living room.
Separate kitchen with access to a private courtyard
Guest WC
Ground-floor independent building for laundry and storage
- First Floor:
Two en-suite bedrooms
Study room
Additional Highlights
- Private courtyard
- Ideal for restoration to create a unique residence or boutique rental property in the historic heart of Nicosia
Nestled in the charming Old City of Nicosia, this property is situated close to Ayios Antonios Church and the Archbishop's Palace.
Showcasing traditional Cypriot architectural design
- Requires extensive renovation
- Comes with approved Planning Permit
- Classified as a listed property, offering partial funding for renovation costs by the Ministry of Interior
Proposed Layout (Approved Plans)
- Ground Floor:
Entrance hall.
Living room.
Separate kitchen with access to a private courtyard
Guest WC
Ground-floor independent building for laundry and storage
- First Floor:
Two en-suite bedrooms
Study room
Additional Highlights
- Private courtyard
- Ideal for restoration to create a unique residence or boutique rental property in the historic heart of Nicosia
Details
City:
Walled Old City
Bedrooms:
2
Furnished:
Unfurnished
Areas
Covered Area:
180m²
Enquire