About
Description
Perfectly positioned just 5 minutes from Lidl and Alpha Mega supermarkets, schools, and everyday amenities, it combines quiet residential living with excellent accessibility.
Status: Under Construction
Property Overview:
📏 Plot Area: 270 sqm
Internal Area: 169 sqm
Covered Veranda: 12 sqm
🚗 Covered Parking: 44 sqm (double parking)
🌿 Courtyard / Yard: 80 sqm
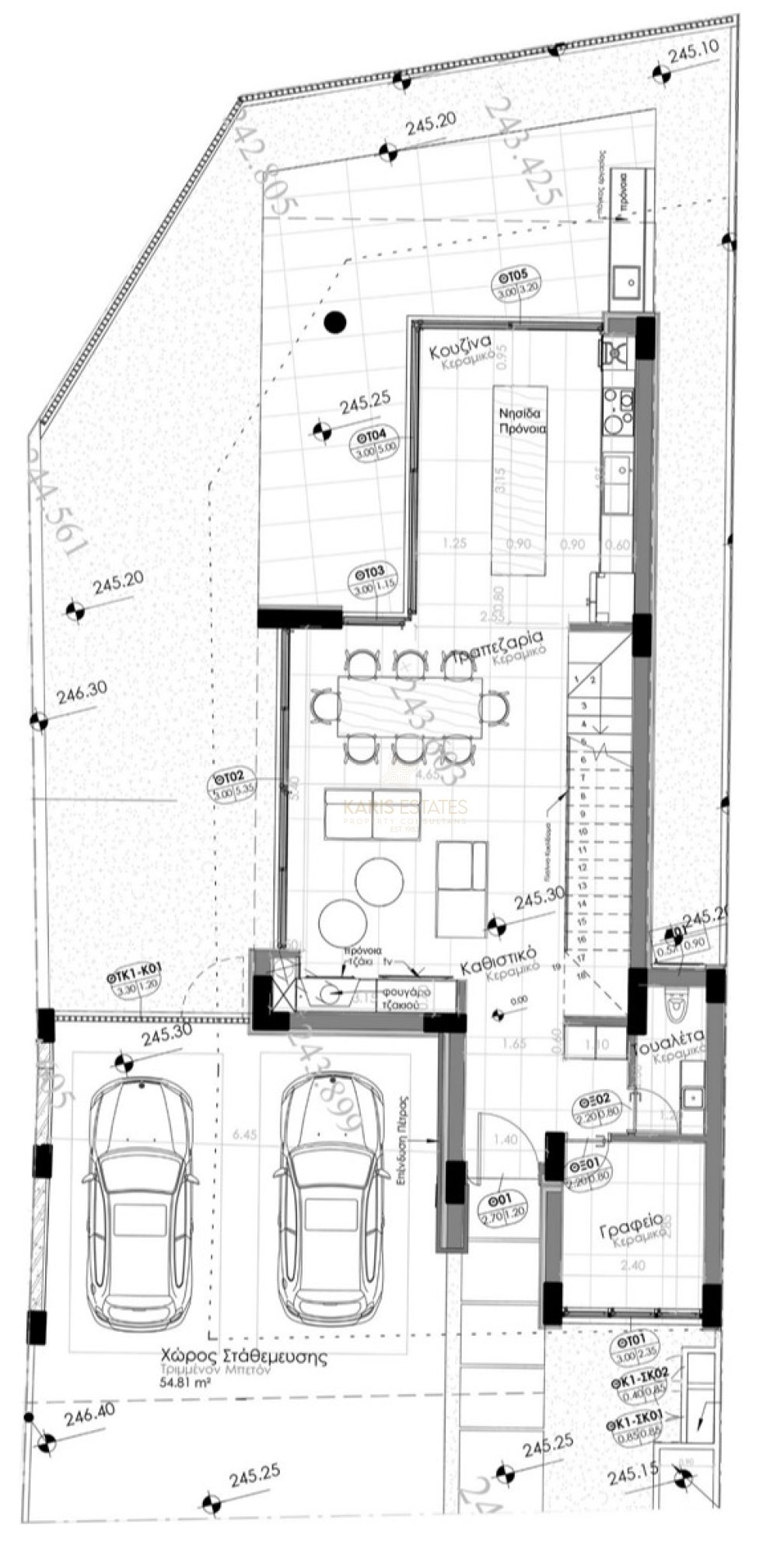
Ground Floor Layout:
Open-plan living, dining & kitchen area
Kitchen with provision for island
Bedroom / office space
Guest WC
Fireplace provision
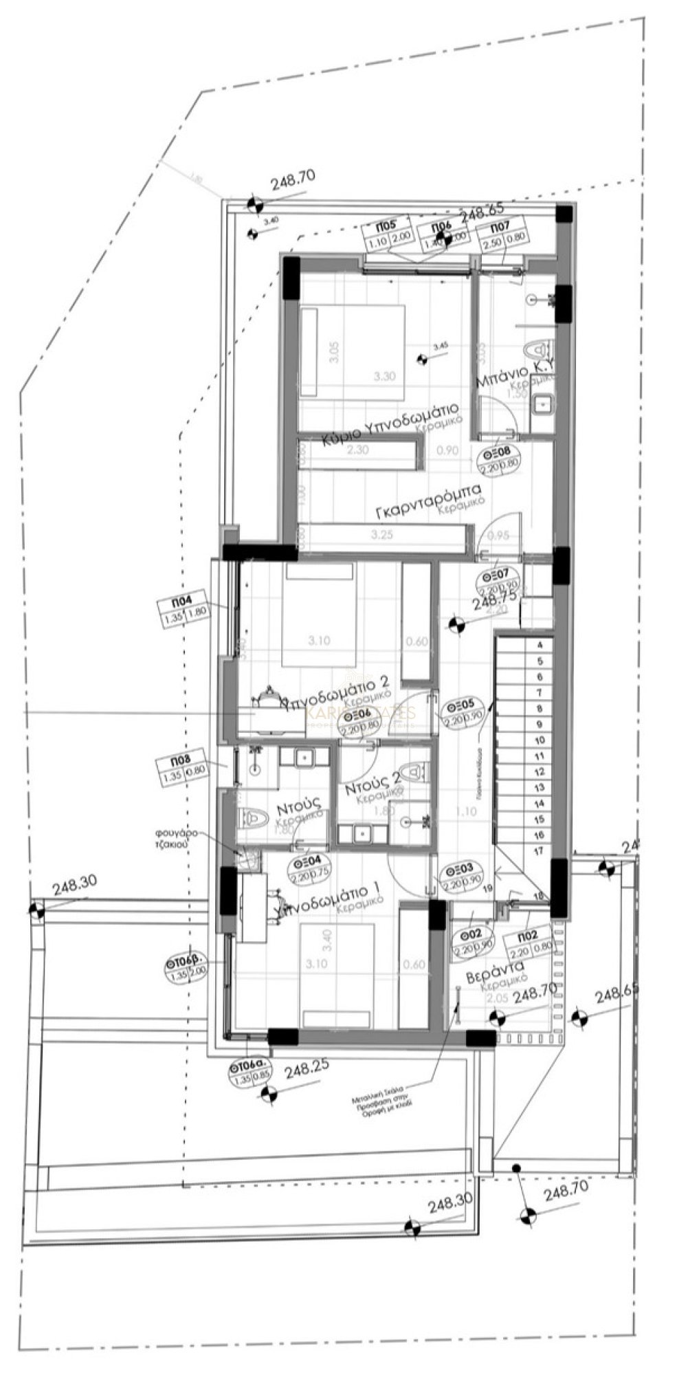
Upper Floor Layout:
Three spacious en-suite bedrooms
Master bedroom with walk-in wardrobe
Covered veranda
🌳 Private courtyard / garden area with BBQ provision
Technical Specifications:
Energy Efficiency Rating: A
Floor-to-ceiling MU114 Slim windows & doors
Thermal facade system
Air-conditioning provision
Underfloor heating provision
Alarm system provision
Video entry system
Built-in showers
Solar water heater
Pressurized water system
Photovoltaic system provision
Pergola provision
🌳 Adjacent to green area
🛒 5 minutes from Lidl & Alpha Mega supermarkets
Close to elementary school
Quiet residential neighbourhood
Easy access to main roads and services
Status: Under Construction
Property Overview:
📏 Plot Area: 270 sqm
Internal Area: 169 sqm
Covered Veranda: 12 sqm
🚗 Covered Parking: 44 sqm (double parking)
🌿 Courtyard / Yard: 80 sqm
Ground Floor Layout:
Open-plan living, dining & kitchen area
Kitchen with provision for island
Bedroom / office space
Guest WC
Fireplace provision
Upper Floor Layout:
Three spacious en-suite bedrooms
Master bedroom with walk-in wardrobe
Covered veranda
🌳 Private courtyard / garden area with BBQ provision
Technical Specifications:
Energy Efficiency Rating: A
Floor-to-ceiling MU114 Slim windows & doors
Thermal facade system
Air-conditioning provision
Underfloor heating provision
Alarm system provision
Video entry system
Built-in showers
Solar water heater
Pressurized water system
Photovoltaic system provision
Pergola provision
🌳 Adjacent to green area
🛒 5 minutes from Lidl & Alpha Mega supermarkets
Close to elementary school
Quiet residential neighbourhood
Easy access to main roads and services
Details
City:
Lakatameia
House Type:
Semi Detached House
Construction Stage:
Under Construction
Bedrooms:
4
Bathrooms:
3
Furnished:
Unfurnished
Kitchen Type:
Open Plan
Covered Parking:
2
Floor Type:
Marble
Construction Year:
2027
Construction Type:
Concrete
Areas
Internal Area:
169m²
Covered Verandas:
12m²
Verandas:
2
Plot Area:
270m²
Garden Area:
80m²
Energy
Heating Type:
Central Heating
Heating Medium:
Underfloor Heating
Cooling Type:
Autonomous Cooling System
Energy Efficiency Grade:
A
Main Features
Alarm:
Secure Door:
Home Office:
Maids Room:
City View:
Double Glazing:
En Suite:
Garden:
Pergola:
Luxury Fittings:
Provision for Central Heating:
Provision for Split Units:
Utility Room:
Veranda Covered:
Veranda Unconvered:
Walk In Wardrobe:
Provision for CCTV:
Photovoltanic Panels:
Electrical Shutters:
Electrical Garage Gate:
Door Phone:
Disabled Access:
Cul De Sac:
CCTV:
Fireplace:
Smart Home:
Air Condition:
Mountain View:
Enquire