About
Description
📍 Historic Core | Between Archiepiscopal Palace & Chrysaliniotissa Church
Built Year: 1935
🏷️ Approved Planning Permit Included (Renovation + Extension)
📏 Current Building Area: 115 m²
📐 Permitted Buildable Area (1.4x): 239.4 m²
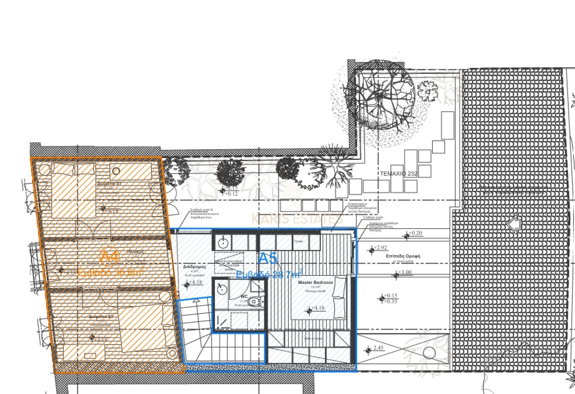
Proposed Build:
Building Area: 181.8 m²
External Courtyard: 40 m²
Internal Sunken Courtyard (Basement): 16 m² with natural stone + soil base
🛏️ 5 Bedrooms
Ground-floor Kitchen + Dining Area
Living Room
Basement Level with storage and sunken courtyard
☀️ Provision for Photovoltaic Panels on Roof
🚗 Residents Eligible for Public Parking Nearby
(2 spaces with minimal annual fee)
📍 Located in a highly preserved historical quarter ideal for boutique residences, art studios, or short-term rentals
🪟 Surrounded by traditional architecture, cobbled streets, and thriving cultural hubs
🧘 Just minutes from city museums, cafes, and artisan shops
Built Year: 1935
🏷️ Approved Planning Permit Included (Renovation + Extension)
📏 Current Building Area: 115 m²
📐 Permitted Buildable Area (1.4x): 239.4 m²
Proposed Build:
Building Area: 181.8 m²
External Courtyard: 40 m²
Internal Sunken Courtyard (Basement): 16 m² with natural stone + soil base
🛏️ 5 Bedrooms
Ground-floor Kitchen + Dining Area
Living Room
Basement Level with storage and sunken courtyard
☀️ Provision for Photovoltaic Panels on Roof
🚗 Residents Eligible for Public Parking Nearby
(2 spaces with minimal annual fee)
📍 Located in a highly preserved historical quarter ideal for boutique residences, art studios, or short-term rentals
🪟 Surrounded by traditional architecture, cobbled streets, and thriving cultural hubs
🧘 Just minutes from city museums, cafes, and artisan shops
Details
City:
Walled Old City
House Type:
Detached House
Construction Stage:
Resale
Bedrooms:
5
Bathrooms:
2
Furnished:
Unfurnished
Kitchen Type:
Separated
Floor Type:
Tiles
Construction Year:
1935
Areas
Internal Area:
115m²
Plot Area:
171m²
Garden Area:
58m²
Energy
Heating Type:
None
Main Features
City View:
Garden:
Enquire