About
Description
Location
This is a rare opportunity to acquire a structurally complete but unfinished three-storey residence in the well-established residential area of Agios Dimitrios in Strovolos. The property sits on a generous plot and offers significant development potential, including spacious indoor and outdoor living areas, a private pool, and a rooftop terrace. Adjacent to Agios Demetrios Primary School and just one minute from Limassol Avenue, it provides quick access to major roadways, public transport, and Nicosia’s city center, which is only a ten-minute drive away.
Plot Details
Built: 2002
Size: 753 m²
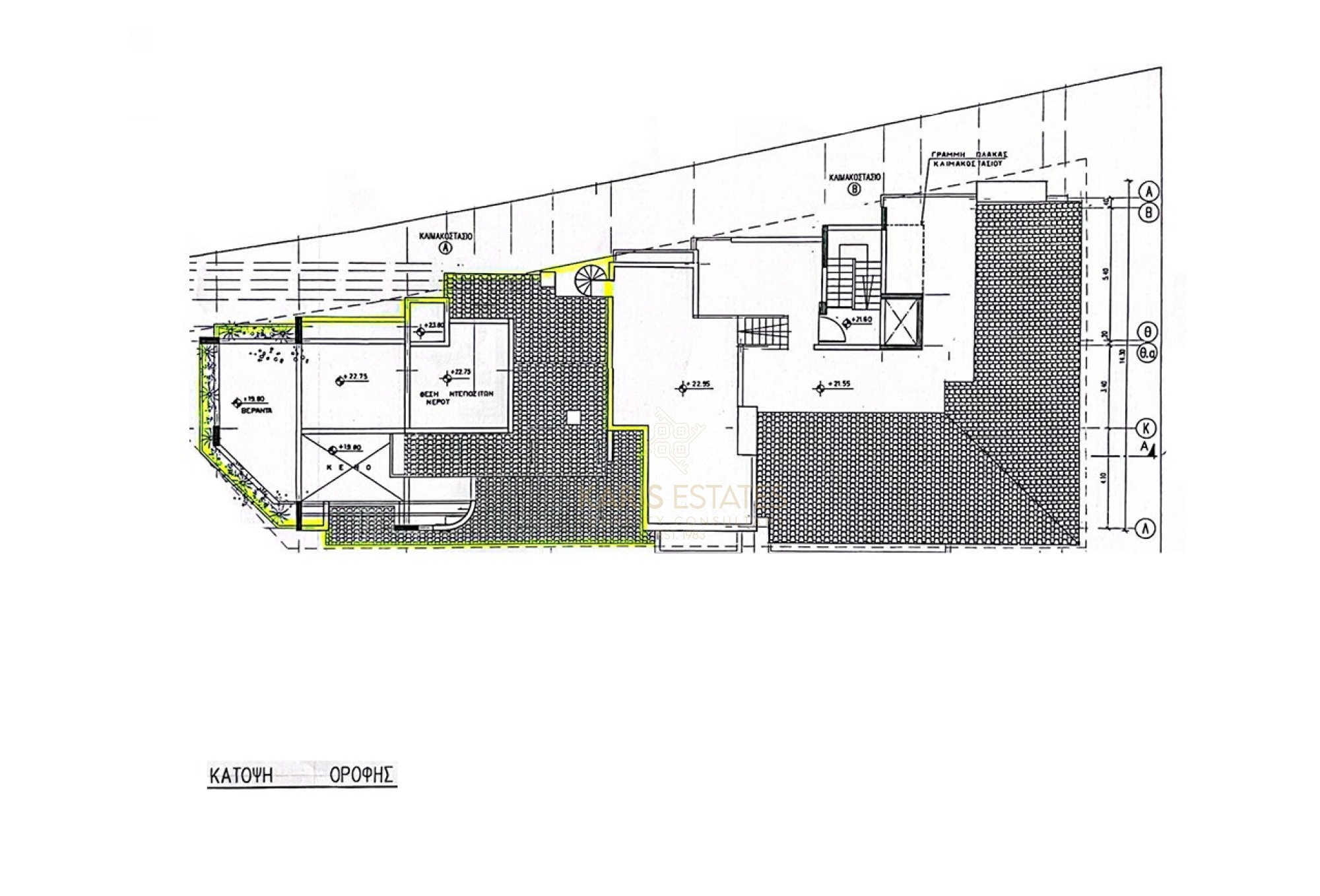
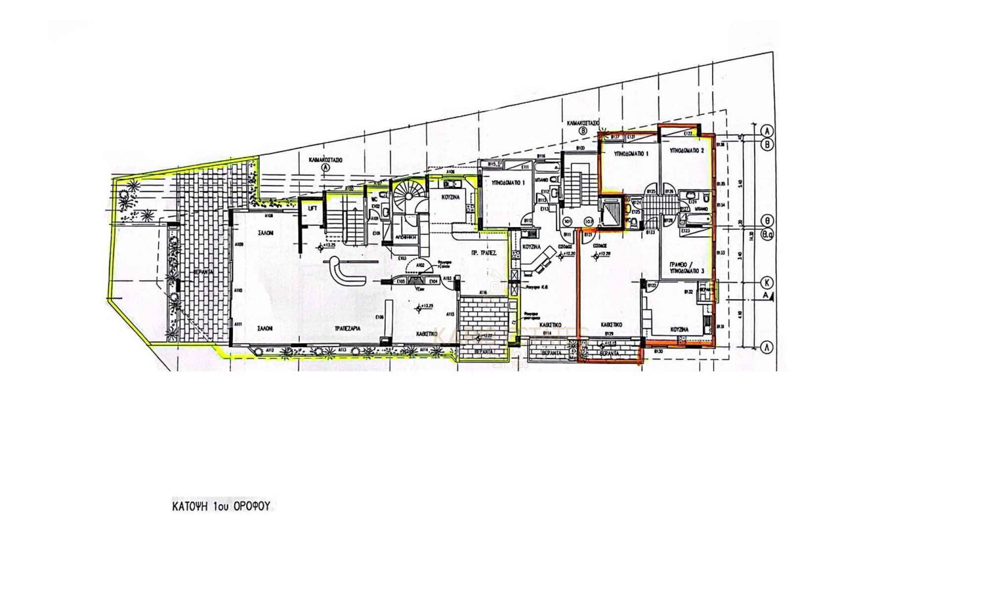
Internal Area: 422 m²
Verandas: 132 m² (covered) + 81 m² (uncovered)
Auxiliary Areas: 110 m²
Floors: 3 + Basement
Outdoor: Roof garden and multiple balconies
Key Features
Bedrooms: 5
Bathrooms: 4
Guest WCs: 4
Kitchens: 2
Parking: 2 (1 covered, 1 uncovered)
Additional Highlights
- Planning Zone: Κα3
- Building Density: 140%
- Coverage: 50%
- Max Height: 17 meters (up to 4 floors)
This is a rare opportunity to acquire a structurally complete but unfinished three-storey residence in the well-established residential area of Agios Dimitrios in Strovolos. The property sits on a generous plot and offers significant development potential, including spacious indoor and outdoor living areas, a private pool, and a rooftop terrace. Adjacent to Agios Demetrios Primary School and just one minute from Limassol Avenue, it provides quick access to major roadways, public transport, and Nicosia’s city center, which is only a ten-minute drive away.
Plot Details
Built: 2002
Size: 753 m²
Internal Area: 422 m²
Verandas: 132 m² (covered) + 81 m² (uncovered)
Auxiliary Areas: 110 m²
Floors: 3 + Basement
Outdoor: Roof garden and multiple balconies
Key Features
Bedrooms: 5
Bathrooms: 4
Guest WCs: 4
Kitchens: 2
Parking: 2 (1 covered, 1 uncovered)
Additional Highlights
- Planning Zone: Κα3
- Building Density: 140%
- Coverage: 50%
- Max Height: 17 meters (up to 4 floors)
Details
City:
Strovolos
House Type:
Semi Detached House
Construction Stage:
Unfinished
Bedrooms:
5
Bathrooms:
4
Kitchen Type:
Separated
Covered Parking:
1
Uncovered Parking:
1
Construction Year:
2022
Construction Type:
Concrete
Areas
Internal Area:
422m²
Covered Verandas:
132m²
Uncovered Verandas:
81m²
Plot Area:
377m²
Main Features
City View:
En Suite:
Utility Room:
Veranda Covered:
Veranda Unconvered:
Cul De Sac:
Basement:
Storage Space:
Enquire