About
Description
A rare, front-line beachfront investment comprising three adjacent seaside fields with approved planning permission for the construction of three identical luxury villas.
Positioned directly on the seafront with unobstructed, permanent sea views, these plots offer exclusive beach access just steps awayβa true coastal lifestyle or high-yield investment.
Land & Planning:
3 adjacent beachfront fields
Approved Planning Permission for 3 identical Villas
The property is offered through a company-based acquisition structure
Building Permit Issuance is expected shortly
π Total Plots Area: 3,860 sqm
π Individual Plot Sizes:
Villa 1: 935 sqm
Villa 2: 915 sqm
Villa 3: 2,010 sqm (with approx. 1,800 sqm landscaped garden)
π‘ Villas Design & Areas (Each Villa):
π Internal Area: 212 sqm
Ground Floor: 70 sqm
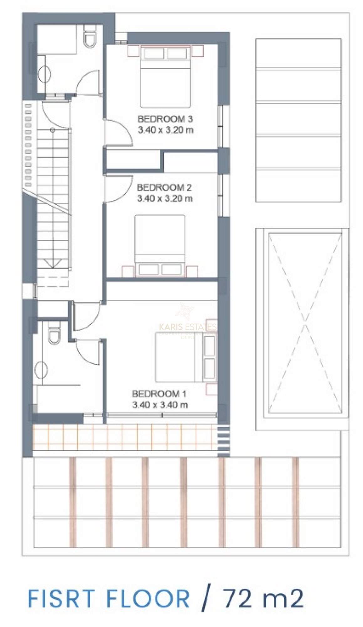
First Floor: 72 sqm
Basement: 70 sqm
πΏ Covered Pergola: 40 sqm
2 floors + basement
Bedrooms: 4 (3 at 1st floor & 1 at basement level)
Bathrooms: 3.5
πParking: 1 Covered
Open-plan kitchen with living and dining areas
π Roof Terrace with Panoramic-uninterrupted Sea views
Private swimming pool
Basement includes: Additional living area, Storage space, Gym or playroom, Sunken yard and Sauna
Distances:
Finikoudes, Larnaca: 20 km
Nissi Beach, Ayia Napa: 18 km
Ayia Napa Marina: 15 km
Why This Opportunity Stands Out:
β Absolute beachfront β no road or obstacle in between
β Approved planning permission (ready-to-build)
β Identical villa concept for streamlined construction
β Rare large beachfront plots in Ormidia
β Strong appeal for luxury resale or holiday rentals
β Villa 3 offers exceptional 1,800 sqm landscaped garden
Ideal For:
Investors seeking premium beachfront returns
Buyers wanting exclusive seaside living
Developers looking for a ready, low-risk luxury project
Positioned directly on the seafront with unobstructed, permanent sea views, these plots offer exclusive beach access just steps awayβa true coastal lifestyle or high-yield investment.
Land & Planning:
3 adjacent beachfront fields
Approved Planning Permission for 3 identical Villas
The property is offered through a company-based acquisition structure
Building Permit Issuance is expected shortly
π Total Plots Area: 3,860 sqm
π Individual Plot Sizes:
Villa 1: 935 sqm
Villa 2: 915 sqm
Villa 3: 2,010 sqm (with approx. 1,800 sqm landscaped garden)
π‘ Villas Design & Areas (Each Villa):
π Internal Area: 212 sqm
Ground Floor: 70 sqm
First Floor: 72 sqm
Basement: 70 sqm
πΏ Covered Pergola: 40 sqm
2 floors + basement
Bedrooms: 4 (3 at 1st floor & 1 at basement level)
Bathrooms: 3.5
πParking: 1 Covered
Open-plan kitchen with living and dining areas
π Roof Terrace with Panoramic-uninterrupted Sea views
Private swimming pool
Basement includes: Additional living area, Storage space, Gym or playroom, Sunken yard and Sauna
Distances:
Finikoudes, Larnaca: 20 km
Nissi Beach, Ayia Napa: 18 km
Ayia Napa Marina: 15 km
Why This Opportunity Stands Out:
β Absolute beachfront β no road or obstacle in between
β Approved planning permission (ready-to-build)
β Identical villa concept for streamlined construction
β Rare large beachfront plots in Ormidia
β Strong appeal for luxury resale or holiday rentals
β Villa 3 offers exceptional 1,800 sqm landscaped garden
Ideal For:
Investors seeking premium beachfront returns
Buyers wanting exclusive seaside living
Developers looking for a ready, low-risk luxury project
Details
City:
Ormideia
Land Type:
Plot
Town Planning Zone:
Tourist
Cover Factor:
20%
Building Density:
40%
Height:
8m
Ideal For:
Investors
Licensed For:
Villas
Areas
Plot Area:
3,860mΒ²
Main Features
Sea View:
Beach Front:
Enquire