About
Description
Location
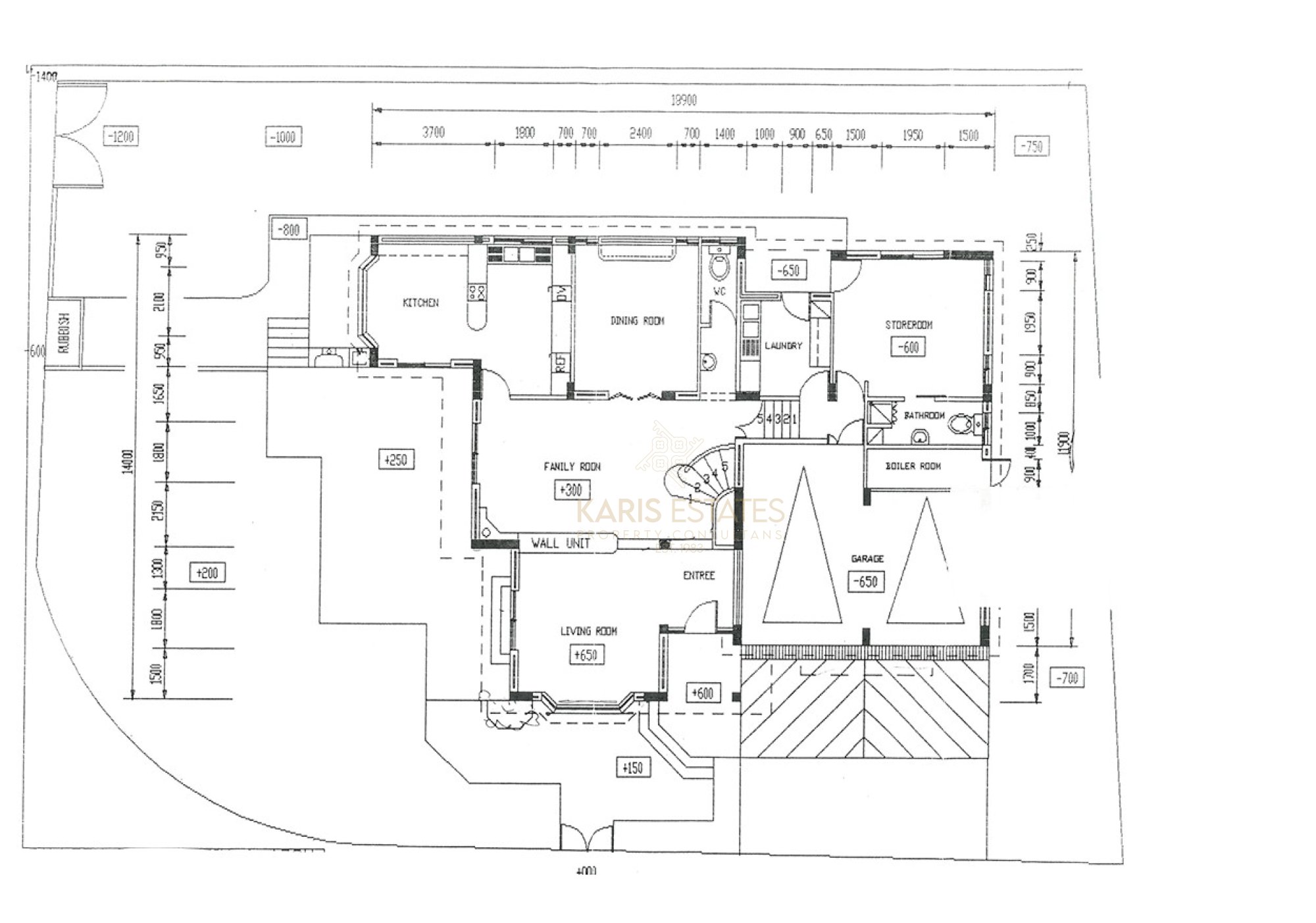
Detached villa in the desirable Parissinos area of Egkomi, set on a 734 m² plot with 342 m² of internal space across multiple levels, finished to a high standard.
Layout
Lower Level
- Two covered parking spaces with automated doors
- Maid’s room with bathroom
- Laundry room
- Secondary kitchen
- Boiler and diesel tank storage
Ground Floor
- Fully equipped kitchen (including wine fridge)
- Guest WC
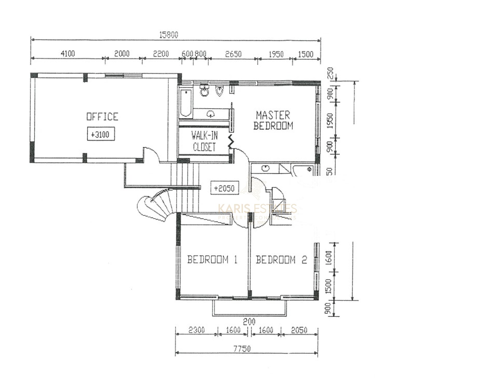
First Floor
- Master bedroom with en-suite, walk-in closet, and veranda
- Two bedrooms with private verandas
- Bathroom with jacuzzi
Upper Level
- Studio-style fourth bedroom with storage and bathroom provision
Key Features
- Pool with jacuzzi
- BBQ and lounge area
- Mature garden with fruit trees
- Outdoor shower and guest WC
Technical Specifications
- Thermal insulation
- Double-glazed aluminum windows with security features
- Split-unit A/C in all rooms
- Diesel central heating
- Dual hot water system
- Alarm system
Detached villa in the desirable Parissinos area of Egkomi, set on a 734 m² plot with 342 m² of internal space across multiple levels, finished to a high standard.
Layout
Lower Level
- Two covered parking spaces with automated doors
- Maid’s room with bathroom
- Laundry room
- Secondary kitchen
- Boiler and diesel tank storage
Ground Floor
- Fully equipped kitchen (including wine fridge)
- Guest WC
First Floor
- Master bedroom with en-suite, walk-in closet, and veranda
- Two bedrooms with private verandas
- Bathroom with jacuzzi
Upper Level
- Studio-style fourth bedroom with storage and bathroom provision
Key Features
- Pool with jacuzzi
- BBQ and lounge area
- Mature garden with fruit trees
- Outdoor shower and guest WC
Technical Specifications
- Thermal insulation
- Double-glazed aluminum windows with security features
- Split-unit A/C in all rooms
- Diesel central heating
- Dual hot water system
- Alarm system
Details
City:
Strovolos
House Type:
Detached House
Construction Stage:
Resale
Bedrooms:
5
Bathrooms:
4
Furnished:
Unfurnished
Kitchen Type:
Separated
Covered Parking:
2
Floor Type:
Marble
Construction Year:
1993
Construction Type:
Concrete
Areas
Internal Area:
285m²
Covered Verandas:
15m²
Uncovered Verandas:
45m²
Plot Area:
734m²
Total Area:
342m²
Energy
Heating Type:
Central Heating
Heating Medium:
Petrol
Cooling Type:
Autonomous Cooling System
Energy Efficiency Grade:
B
Main Features
Alarm:
Secure Door:
Separate Laundry Room:
Maids Room:
City View:
Double Glazing:
En Suite:
Fitted Kitchen:
Garden:
Pergola:
Provision for Central Heating:
Provision for Split Units:
Utility Room:
Veranda Covered:
Veranda Unconvered:
Walk In Wardrobe:
Provision for CCTV:
Pressurized Water System:
Internet Access:
Electrical Garage Gate:
Basement:
Storage Space:
Air Condition:
Enquire