#115
Completed
Vyronos 8
Makedonitissa, Egkomi, Nicosia
About
Description
VYRONOS 8 is being developed in a prime location of Makedonitissa, Engomi, Nicosia.
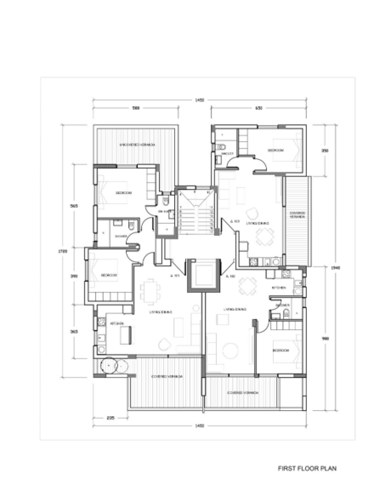
The building consists of 9 luxury one and two bedroom apartments. The building enjoys the quietness of the area, but yet has direct access to main arteries of Engomi and the city, and with close proximity to key locations such as the University of Nicosia Campus.
The architecture offers spacious apartments with clear internal spaces and large verandas, with sliding glass doors that unify the interior spaces with the exterior. The technical specifications and finishes of the building correspond to the contemporary feel of the development and the high demands of everyday living.
The building creates great opportunities for both investment and for private- home purposes.
Architectural Design
The building has a unique architectural design with contemporary architectural elements characterizing the façade of the building. Internally the building’s form offers spacious living spaces with large sliding doors leading to large terraces for all the residences.
Quality of Construction
The highest standards of construction and finishes are carried through to all the stages of the construction. Qualified and experienced architects, engineers, contractors carry out regular inspections for the guarantee of the best quality.
Certificate of Energy Efficiency
The building has an Energy Performance Certificate Category A.
The building will be supported by photovoltaic panels for the energy efficiency of the common areas of the building.
Frame
The frame of the building will be of high tensile steel reinforced concrete with earthquake-proof design. The building is being constructed in accordance with an anti-seismic study.
Walls
All external walls will be of top quality bricks with thermal insulation properties. All external surfaces will be covered with a thermal façade system.
Internal walls will be single with a total thickness of 10cms.
Wall finishes
Internal walls will be of three layers of plastering and paint and external walls will be of three layers of plaster and painting with Santex paint.
Floor finishes
Living areas, bedrooms and corridors will be covered with high quality laminate timber floor of price €25/m2 (installation and skirting will be included in the price).
Bathrooms will be covered with high quality ceramic tiles of price €25/m2.
All verandas will be covered with tiles suitable for exterior use of price €25/m2.
External and internal common areas and staircase will be covered with high quality materials.
Bathroom, W.C. and kitchen walls
Bathrooms and W.C. walls will be covered with high quality ceramic tiles of price €25/m2 up to the ceiling.
Ceilings
All ceilings will be finished with emulsion paint.
Window & Door openings
The main entrances of the apartments will be of modern design and with specifications that follow the Fire Safety Regulations. The doors will also be equipped with features that allow for sound and thermal proof qualities.
All window and door openings will be Thermal sliding aluminium framed with double-glazing for high levels of sound and thermal proof qualities and equipped with safety locks.
The main entrance of the building will be of clear laminated glass.
Balconies
The balconies will be fitted with laminated glazed balustrades.
Sanitary fittings
All sanitary fittings will be white of excellent quality and will be selected by the buyers.
Carpentry works
Kitchen fittings will be Italian made, imported, of modern design and in accordance with the internal layout of the apartments, in various colours and accessories. The worktops will be covered with granite of price €210/m. All equipment will be of excellent quality.
The Bathroom furniture will be Italian made imported.
Interior doors will be Italian made imported, of modern design in various colors and accessories.
Bedroom wardrobes will be Italian made, imported of modern design and in various colors and accessories of the highest quality.
Electrical installation
The electrical installation is made in accordance to the regulations of the Electricity Authority of Cyprus. It includes adequate number of lighting points, two power points in every room, six points in the kitchen, four points in the living/dining area, two internet points and two TV points.
Feature lighting for the main entrance and the common areas of the building will be provided.
Plumbing drainage
The plumbing drainage installation is made in accordance to British specifications. The installation will be of the type “pipe-in-pipe” system.
The building will have a water pressure system.
Provision of an electrical extractor will be provided.
Heating/ Cooling
Complete installation of AC units, in living/ dining areas and all bedrooms of the Apartments.
Also complete installation of solar heaters will be provided.
Security system
All the necessary provisional work will be carried out for the installation of a security system in each apartment.
Light Fittings
Modern light fittings for the ceilings will be provided for all the terraces. Light fittings internally will be provided by the buyers.
In the bathroom and w.c. there will be false ceilings with electrical provision for spot lights.
Common Areas
Internal and external common areas will be decorated with luxury finishes.
Architectural lighting internally and externally will be fitted to emphasize main features of the building.
Sensors for automated lighting will be fitted at the entrance of the building as well as parking spaces for extra security.
Selected landscaping will be designed for the external areas of the building provided with automated water system.
Elevator
The elevator installed will be of the latest technology, of the type machine- roomless and gearless, with a luxury decorated car.
Parking space and storage area
All apartments are provided with 1 covered parking space and storage area.
Video door entry phone system
Complete installation of a video entry phone system at the main entrance for each apartment will be provided.
Electrical doors
There will be an electrical controlled door at the front entrance of the building with keypad access control system.
Note
The above materials can be selected by the buyers from the specified providers of the company.
The building consists of 9 luxury one and two bedroom apartments. The building enjoys the quietness of the area, but yet has direct access to main arteries of Engomi and the city, and with close proximity to key locations such as the University of Nicosia Campus.
The architecture offers spacious apartments with clear internal spaces and large verandas, with sliding glass doors that unify the interior spaces with the exterior. The technical specifications and finishes of the building correspond to the contemporary feel of the development and the high demands of everyday living.
The building creates great opportunities for both investment and for private- home purposes.
Architectural Design
The building has a unique architectural design with contemporary architectural elements characterizing the façade of the building. Internally the building’s form offers spacious living spaces with large sliding doors leading to large terraces for all the residences.
Quality of Construction
The highest standards of construction and finishes are carried through to all the stages of the construction. Qualified and experienced architects, engineers, contractors carry out regular inspections for the guarantee of the best quality.
Certificate of Energy Efficiency
The building has an Energy Performance Certificate Category A.
The building will be supported by photovoltaic panels for the energy efficiency of the common areas of the building.
Frame
The frame of the building will be of high tensile steel reinforced concrete with earthquake-proof design. The building is being constructed in accordance with an anti-seismic study.
Walls
All external walls will be of top quality bricks with thermal insulation properties. All external surfaces will be covered with a thermal façade system.
Internal walls will be single with a total thickness of 10cms.
Wall finishes
Internal walls will be of three layers of plastering and paint and external walls will be of three layers of plaster and painting with Santex paint.
Floor finishes
Living areas, bedrooms and corridors will be covered with high quality laminate timber floor of price €25/m2 (installation and skirting will be included in the price).
Bathrooms will be covered with high quality ceramic tiles of price €25/m2.
All verandas will be covered with tiles suitable for exterior use of price €25/m2.
External and internal common areas and staircase will be covered with high quality materials.
Bathroom, W.C. and kitchen walls
Bathrooms and W.C. walls will be covered with high quality ceramic tiles of price €25/m2 up to the ceiling.
Ceilings
All ceilings will be finished with emulsion paint.
Window & Door openings
The main entrances of the apartments will be of modern design and with specifications that follow the Fire Safety Regulations. The doors will also be equipped with features that allow for sound and thermal proof qualities.
All window and door openings will be Thermal sliding aluminium framed with double-glazing for high levels of sound and thermal proof qualities and equipped with safety locks.
The main entrance of the building will be of clear laminated glass.
Balconies
The balconies will be fitted with laminated glazed balustrades.
Sanitary fittings
All sanitary fittings will be white of excellent quality and will be selected by the buyers.
Carpentry works
Kitchen fittings will be Italian made, imported, of modern design and in accordance with the internal layout of the apartments, in various colours and accessories. The worktops will be covered with granite of price €210/m. All equipment will be of excellent quality.
The Bathroom furniture will be Italian made imported.
Interior doors will be Italian made imported, of modern design in various colors and accessories.
Bedroom wardrobes will be Italian made, imported of modern design and in various colors and accessories of the highest quality.
Electrical installation
The electrical installation is made in accordance to the regulations of the Electricity Authority of Cyprus. It includes adequate number of lighting points, two power points in every room, six points in the kitchen, four points in the living/dining area, two internet points and two TV points.
Feature lighting for the main entrance and the common areas of the building will be provided.
Plumbing drainage
The plumbing drainage installation is made in accordance to British specifications. The installation will be of the type “pipe-in-pipe” system.
The building will have a water pressure system.
Provision of an electrical extractor will be provided.
Heating/ Cooling
Complete installation of AC units, in living/ dining areas and all bedrooms of the Apartments.
Also complete installation of solar heaters will be provided.
Security system
All the necessary provisional work will be carried out for the installation of a security system in each apartment.
Light Fittings
Modern light fittings for the ceilings will be provided for all the terraces. Light fittings internally will be provided by the buyers.
In the bathroom and w.c. there will be false ceilings with electrical provision for spot lights.
Common Areas
Internal and external common areas will be decorated with luxury finishes.
Architectural lighting internally and externally will be fitted to emphasize main features of the building.
Sensors for automated lighting will be fitted at the entrance of the building as well as parking spaces for extra security.
Selected landscaping will be designed for the external areas of the building provided with automated water system.
Elevator
The elevator installed will be of the latest technology, of the type machine- roomless and gearless, with a luxury decorated car.
Parking space and storage area
All apartments are provided with 1 covered parking space and storage area.
Video door entry phone system
Complete installation of a video entry phone system at the main entrance for each apartment will be provided.
Electrical doors
There will be an electrical controlled door at the front entrance of the building with keypad access control system.
Note
The above materials can be selected by the buyers from the specified providers of the company.
Enquire
Contact Us
Location
Lordou Vyronos Street is located in the heart of Nicosia, within a prestigious and well-connected area. This address combines a central location with access to essential amenities, cultural landmarks, and professional hubs, making it ideal for families, professionals, and visitors.
Shopping & Dining:
- Makariou Avenue: Within walking distance, offering high-street retail stores, boutiques, and international brands.
- Nicosia City Center: Features shopping districts, cafés, and restaurants, less than 2 km away.
- Supermarkets & Convenience Stores: Several within a 5-minute drive.
Cultural & Historical Landmarks:
- Eleftheria Square: About 1.5 km away (5-minute drive), the heart of the city and a hub for events and cultural activities.
- Old Town Nicosia: A short distance away, known for its historic streets, artisan shops, and traditional taverns.
Recreation:
- Athletic Facilities: Nearby gyms, yoga studios, and fitness centers.
- Parks & Green Spaces: Several options for outdoor activities, including Linear Park along Pedieos River.
Distances & Connectivity:
- Nicosia City Center: Less than 2 km away (5-minute drive).
- Public Transport: Well-served by buses with stops within walking distance.
- Major Roads: Easy access to the city's ring road and highways leading to other parts of the island.
Shopping & Dining:
- Makariou Avenue: Within walking distance, offering high-street retail stores, boutiques, and international brands.
- Nicosia City Center: Features shopping districts, cafés, and restaurants, less than 2 km away.
- Supermarkets & Convenience Stores: Several within a 5-minute drive.
Cultural & Historical Landmarks:
- Eleftheria Square: About 1.5 km away (5-minute drive), the heart of the city and a hub for events and cultural activities.
- Old Town Nicosia: A short distance away, known for its historic streets, artisan shops, and traditional taverns.
Recreation:
- Athletic Facilities: Nearby gyms, yoga studios, and fitness centers.
- Parks & Green Spaces: Several options for outdoor activities, including Linear Park along Pedieos River.
Distances & Connectivity:
- Nicosia City Center: Less than 2 km away (5-minute drive).
- Public Transport: Well-served by buses with stops within walking distance.
- Major Roads: Easy access to the city's ring road and highways leading to other parts of the island.
2.00 km
4.00 km
2.00 km
2.00 km
Properties List
Unit #
Type
Bedrooms
Bathrooms
Roof Garden
Verandas
Internal Size
Price
Status