#121
Completed
Avia Residence
Parissinos, Egkomi, Nicosia
About
Description
Residence is located in the Parissinos area in Engomi, Nicosia. The neighbourhood is riddled with beautiful houses and green areas. There are numerous amenities nearby, including schools, supermarkets, bakeries and cafes.
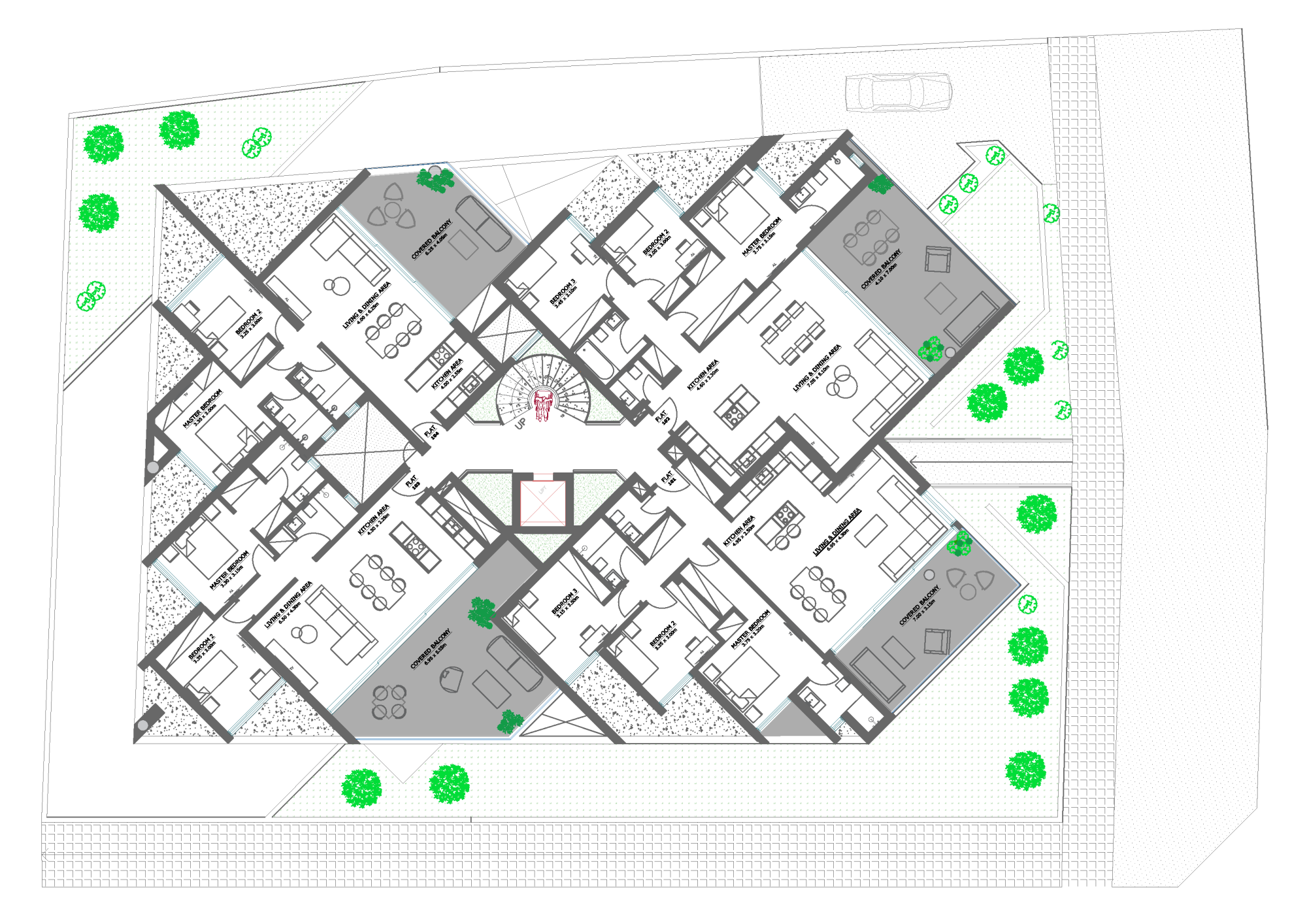
The design has been inspired by modern urban living trends that include large living room areas, oversized verandas and functional bedroom layouts. The sleek minimal lines are intertwined with a playful criss-cross facade and topped off with a stunning main
lobby atrium.
Ground floor:
Large floor-to-ceiling balcony doors
Underfloor heating with heat-pump technology
Air-conditioning installation (concealed in living room)
Open-plan Italian kitchens by Fabrica
Electrically operated external blinds
Spacious covered verandas
Ensuite master bedroom
Separate laundry area
Electric vehicle charging preparation
'A' Grade Thermal Rating
Level 1:
Large floor-to-ceiling balcony doors
Underfloor heating with heat-pump technology
Air-conditioning installation (concealed in living room)
Open-plan Italian kitchens by Fabrica
Electrically operated external blinds
Spacious covered verandas
Ensuite master bedroom
Separate laundry area
Electric vehicle charging preparation
'A' Grade Thermal Rating
Level 2:
Large floor-to-ceiling balcony doors
Underfloor heating with heat-pump technology
Air-conditioning installation (concealed in living room)
Open-plan Italian kitchens by Fabrica
Electrically operated external blinds
Spacious covered verandas
Ensuite master bedroom
Separate laundry area
Electric vehicle charging preparation
'A' Grade Thermal Rating
Luxury specifications:
Complete Installation
Of Air-Conditioning
Underfloor Heating
System (Heat Pump)
Photovoltaic System
For Each Apartment
Heated Towel Rails
Electric External
Shading Systems
Landscaping Automated Garage Doors
Unrivalled Construction
Quality
‘A’ Grade Thermal Rating
Avant-Garde
Architectural Design
Flat-Slab
Structural Design
Luxury Italian Kitchens Architectural Lighting
By Pedini
Hard-Wood
Parquet Flooring
The design has been inspired by modern urban living trends that include large living room areas, oversized verandas and functional bedroom layouts. The sleek minimal lines are intertwined with a playful criss-cross facade and topped off with a stunning main
lobby atrium.
Ground floor:
Large floor-to-ceiling balcony doors
Underfloor heating with heat-pump technology
Air-conditioning installation (concealed in living room)
Open-plan Italian kitchens by Fabrica
Electrically operated external blinds
Spacious covered verandas
Ensuite master bedroom
Separate laundry area
Electric vehicle charging preparation
'A' Grade Thermal Rating
Level 1:
Large floor-to-ceiling balcony doors
Underfloor heating with heat-pump technology
Air-conditioning installation (concealed in living room)
Open-plan Italian kitchens by Fabrica
Electrically operated external blinds
Spacious covered verandas
Ensuite master bedroom
Separate laundry area
Electric vehicle charging preparation
'A' Grade Thermal Rating
Level 2:
Large floor-to-ceiling balcony doors
Underfloor heating with heat-pump technology
Air-conditioning installation (concealed in living room)
Open-plan Italian kitchens by Fabrica
Electrically operated external blinds
Spacious covered verandas
Ensuite master bedroom
Separate laundry area
Electric vehicle charging preparation
'A' Grade Thermal Rating
Luxury specifications:
Complete Installation
Of Air-Conditioning
Underfloor Heating
System (Heat Pump)
Photovoltaic System
For Each Apartment
Heated Towel Rails
Electric External
Shading Systems
Landscaping Automated Garage Doors
Unrivalled Construction
Quality
‘A’ Grade Thermal Rating
Avant-Garde
Architectural Design
Flat-Slab
Structural Design
Luxury Italian Kitchens Architectural Lighting
By Pedini
Hard-Wood
Parquet Flooring
Enquire
Contact Us
Location
Avia Residence is located in the Parissinos area in Engomi, Nicosia. The neighbourhood is riddled with beautiful houses and green areas.There are numerous amenities nearby, including schools, supermarkets, bakeries and cafes.
5.50 km
6.50 km
3.00 km
2.00 km
Properties List
Unit #
Type
Bedrooms
Bathrooms
Roof Garden
Verandas
Internal Size
Price
Status